Skylines architecture et urbanisme Paris
  • PROJETS
  • AGENCE
    • PRÉSENTATION
    • VIA 35
    • PRATIQUES
    • PUBLICATIONS
    • PARTENAIRES
  • CONTACT
  • PROJETS /
  • LOGEMENT INDIVIDUEL /

Loft

- Paris 3 -




COMMUNE // Paris

MAITRE D'OUVRAGE // Privé

MAITRE D'OEUVRE // ESPACES LIBRES

RESPONSABLE PROJET // Stefan Pluzanski

SURFACE // 430 m²

MONTANT // 450 000 €

MISSION // complète

ANNEE // 2004



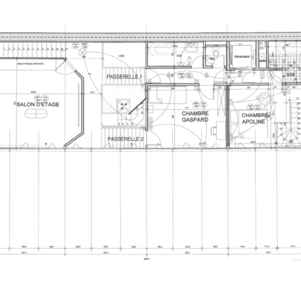
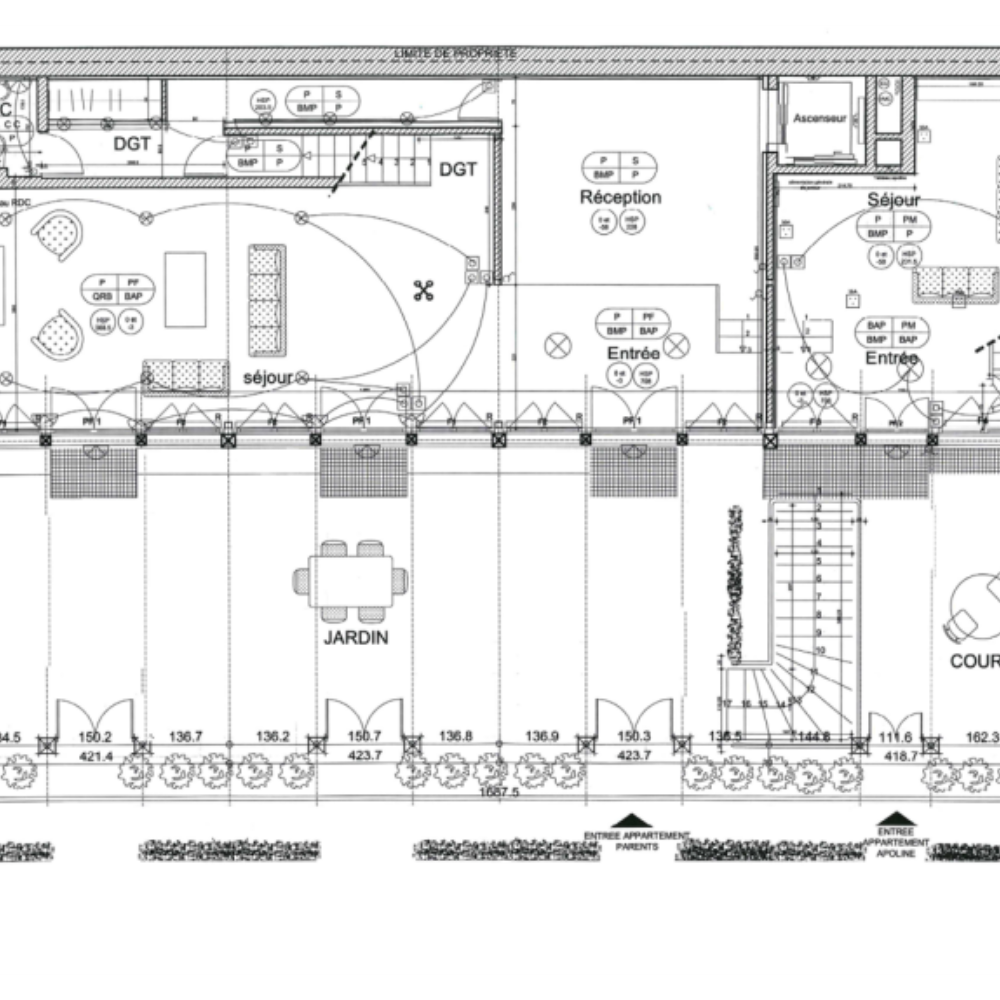
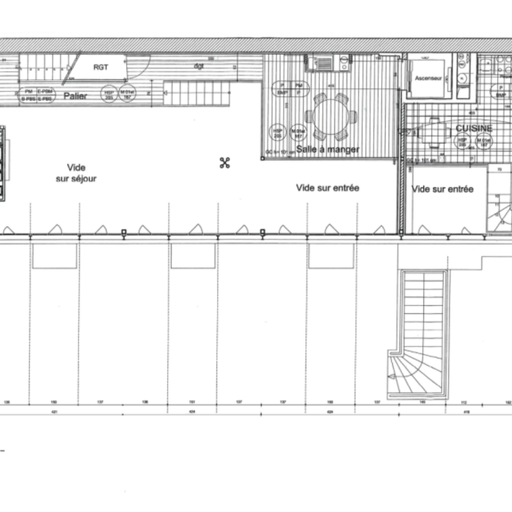
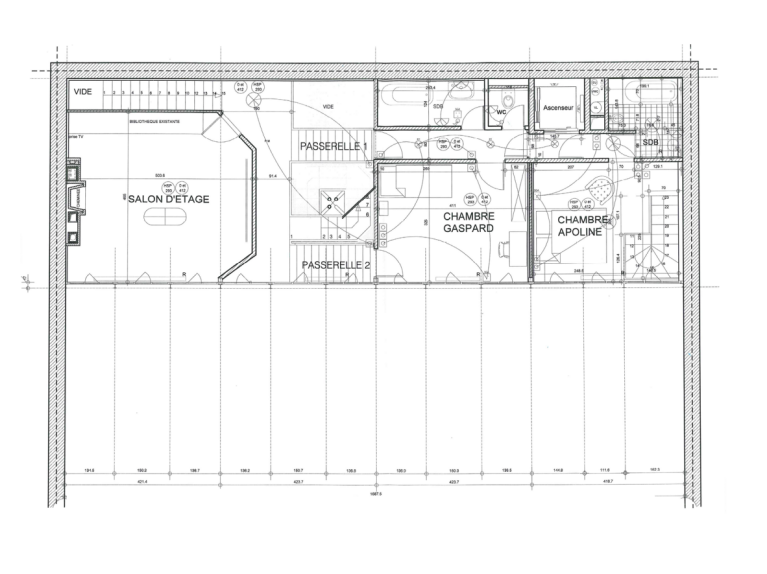
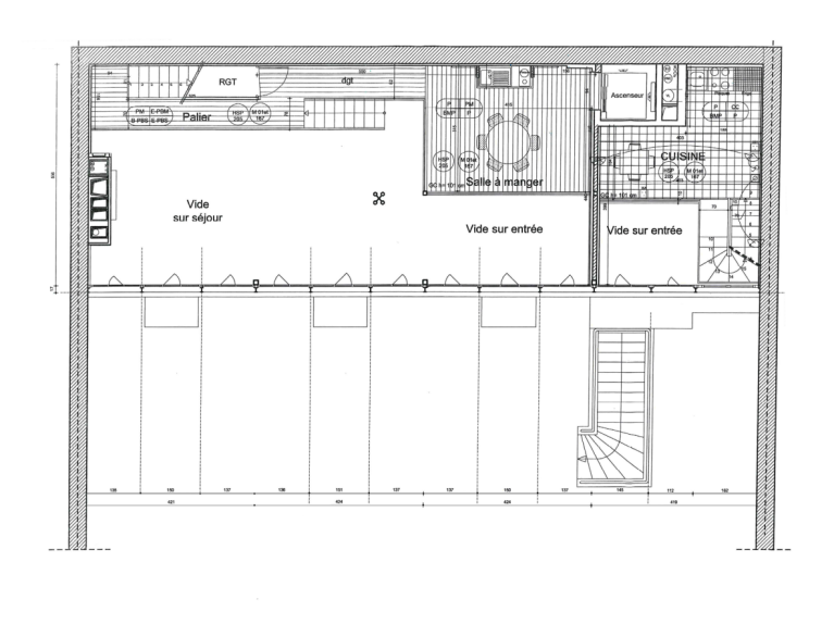
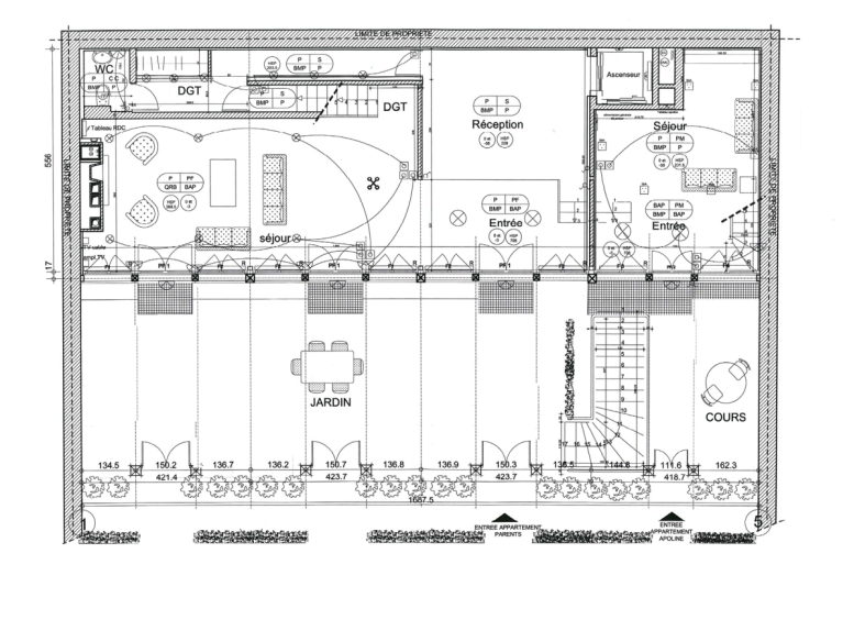
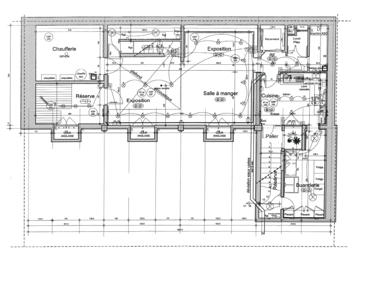
Rénovation lourde et réaménagement intérieur d’un loft dans le marais.



Amethyx Architecture - 35 rue de Coulmiers - 75014 Paris - + 33 1 40 52 14 14 - contact@amethyx.fr - Mentions légales

Pour vos projets d'aménagements intérieur (design intérieur et décoration), découvrez notre partenaire SKYLINES